〈商談中〉★プレミアムスタイル★JR「稲積公園」駅 徒歩10分の平屋[前田3-4]PREMIUM

物件価格
4,290 万円 (税込)
月々支払い例
105,061
頭金0円/ボーナス払い0円
※40年返済 ※3年固定金利0.83%

交通・地図

所在地
札幌市手稲区前田3条4丁目3
最寄駅
JR函館本線「稲積公園」駅
小学校区
稲積小学校
中学校区
稲積中学校
0120-406-124

営業時間 / 9:00〜17:00(火・水定休)

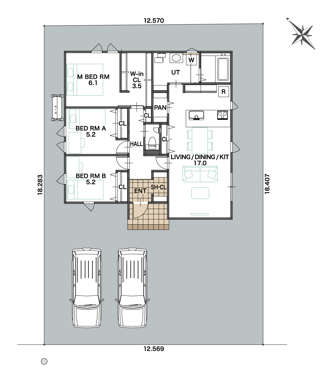
間取り図

プレミアムスタイル

PREMIUM STYLE

高級感のあるプレミアムスタイル

デザインも使いやすさも抜群の
フルフラットのキッチンや、
スタイリッシュな空間を演出する
木製ブラインド。
注文住宅を彷彿させる細部まで
こだわったインテリア仕様です。

白とグレーのメリハリあるシックな空間
シックな落ち着いたイメージの玄関

内観イメージ

プレミアム
プレミアム
プレミアム
プレミアム

設備・仕様

  • 第一種熱交換器

    排気時の熱エネルギーを給気と一緒に室内へ戻します。外気温を室温に近づけて給気するので、快適な室内温度を保つことができます。

  • トリプルガラス

    窓は家の中で最も熱の出入りがある箇所。窓から断熱性能を向上させることで暖房効率も良くなり、光熱費の削減にもつながります。

  • 発泡ウレタン断熱

    硬質ウレタン断熱材で建物壁面をすべて覆います。湿気に強く結露も安心、夏は涼しく冬は暖かい室内空間を作ります。

  • 基礎断熱

    コンクリート基礎を断熱材で内側・外側から挟み込み、寒くない床下をつくります。冷気を床下に入れないので、足元が冷えにくくなります。

  • 玄関床暖房

    玄関土間には床暖房を採用。冬は雪や雨で濡れても乾きやすく、あたたかい状態を保ってくれます。

  • 根太レス工法

    梁と床の根太と呼ばれる床組をなくし、直接合板で貼り固め床にも剛性を持たせる工法。地震の揺れを面全体で受け止め分散・吸収します。

  • セントラルヒーティング

    全居室にセントラルヒーティングを完備。室内の温度差が少なく、24時間家中暖かい状態を保ちます。

  • 省エネ性能ラベル

物件概要

PREMIUM STYLE

間取り
3LDK
土地面積
230.59㎡(69.75坪)
築年月(竣工月)
2025年9月
建ぺい率/容積率
40%/80%
接道状況
南西側公道8.000m 接道12.569m
用途地域
第一種低層住居専用地域
設備
灯油、システムキッチン、IHクッキングヒーター、食器洗乾燥機、浄水器、シャワー付洗面化粧台、節水型トイレ、温水洗浄便座、TVモニタ付インターホン、全居室フローリング、ウォークインクローゼット、シューズクローク
建物面積
85.92㎡(25.99坪)
駐車場
2台
都市計画
市街化区域
地目
宅地
地勢
平坦
取引態様
売主
建築確認番号
第SKK20245108号
引渡し予定月
2025年11月予定
その他制限事項
景観法、高度地区、都市再生特別措置法、水防法
取引有効期限
2025年11月30日

周辺環境

  • JR函館本線「稲積公園」駅 徒歩10分

  • 稲積中学校 徒歩4分

  • 富丘つくし幼稚園 徒歩18分

  • コープ新はっさむ店 徒歩10分

  • ツルハドラッグ手稲前田6条店 徒歩11分

  • 発寒簡易郵便局 徒歩9分

  • 手稲渓仁会病院 車で9分

この物件を問い合わせる

PREMIUM STYLE


    物件名
    物件情報
    お問い合わせ内容
    (複数回答可)
    ご希望日
    (火・水曜定休)
    ご希望時間
    お名前
    電話番号
    (ハイフン(-)なし)
    メールアドレス
    郵便番号
    都道府県
    市区町村
    町域以下
    SOU HOUSEを
    どこでお知りに
    なりましたか?
    ご覧になったこと
    のある広告を教え
    てください
    ご意見・ご質問
    (300文字以内)

    似た条件の物件

    資料請求

    まずはSOU HOUSEを知りたい方
    三角形のモチーフで住宅内観写真をコラージュし、中央に大きく「TOTAL GUIDE」と配した資料請求用バナー。左下にSOUHOUSEロゴと問い合わせ先情報を掲載

    ご自宅でご覧いただける、SOUHOUSEの家づくりがわかる
    無料パンフレットをお送りいたします。

    来場・相談予約

    実際の建物見学をしたい方
    女性スタッフがテーブル越しに夫婦に家づくり資料を見せながら笑顔で説明する、来場・相談予約用のイメージ写真

    住まいを体感したい方へ。ご見学と一緒にお客様の条件に
    合わせた住まいのご提案も行います。