南北線「自衛隊前」駅 徒歩20分[澄川6-11]NATURAL
- 物件価格
- 3,690 万円 (税込)
- 月々支払い例
- 90,367 円
交通・地図
- 所在地
- 札幌市南区澄川6条11丁目16
- 最寄駅
- 地下鉄南北線「自衛隊前」駅
- 小学校区
- 澄川南小学校
- 中学校区
- 澄川中学校
営業時間 / 9:00〜17:00(火・水定休)
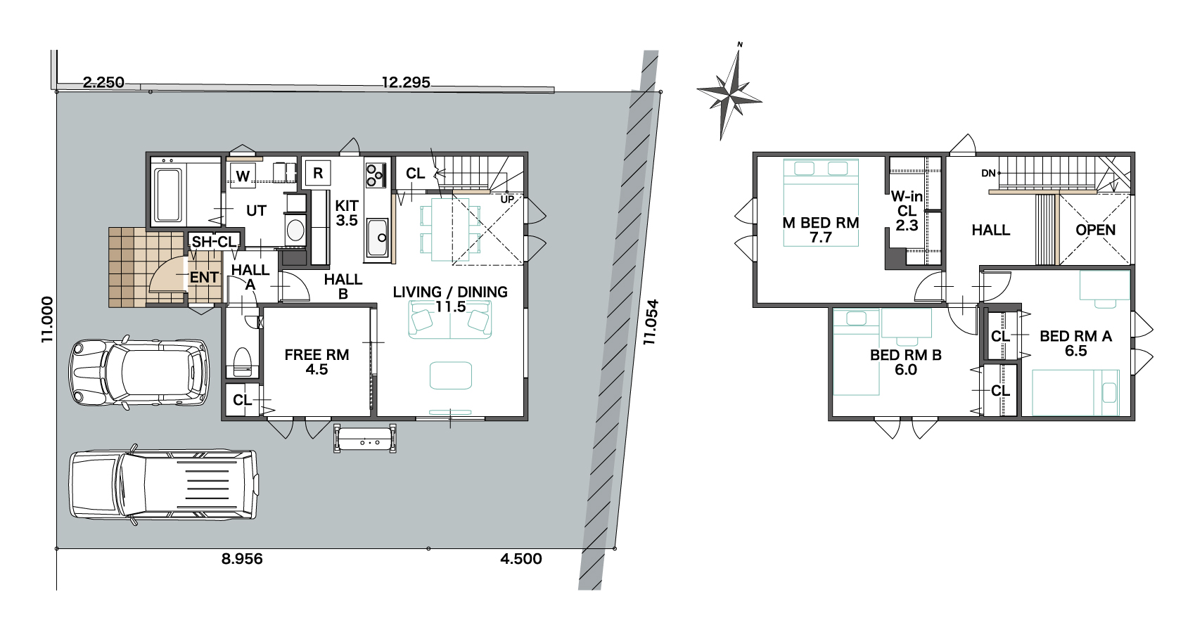
間取り図
ナチュラルスタイル
NATURAL STYLE
やさしい色合いの
オーク柄のフロアや
温もりを感じる木目柄のキッチン。
白い壁にグレージュのカーテンを
組み合わせた、
ナチュラルで明るい
開放感のある空間へ
内観イメージ
設備・仕様
-
プレミアムシリーズ外壁
耐久性に優れた16mmプレミアム外壁材を使用。一般的な外壁材より将来のメンテナンス費用の負担を減らします。
-
第一種熱交換器
排気時の熱エネルギーを給気と一緒に室内へ戻します。外気温を室温に近づけて給気するので、快適な室内温度を保つことができます。
-
トリプルガラス
窓は家の中で最も熱の出入りがある箇所。窓から断熱性能を向上させることで暖房効率も良くなり、光熱費の削減にもつながります。
-
発泡ウレタン断熱
硬質ウレタン断熱材で建物壁面をすべて覆います。湿気に強く結露も安心、夏は涼しく冬は暖かい室内空間を作ります。
-
基礎断熱
コンクリート基礎を断熱材で内側・外側から挟み込み、寒くない床下をつくります。冷気を床下に入れないので、足元が冷えにくくなります。
-
玄関床暖房
玄関土間には床暖房を採用。冬は雪や雨で濡れても乾きやすく、あたたかい状態を保ってくれます。
-
根太レス工法
梁と床の根太と呼ばれる床組をなくし、直接合板で貼り固め床にも剛性を持たせる工法。地震の揺れを面全体で受け止め分散・吸収します。
-
セントラルヒーティング
全居室にセントラルヒーティングを完備。室内の温度差が少なく、24時間家中暖かい状態を保ちます。
物件概要
NATURAL STYLE
- 間取り
- 4LDK
- 土地面積
- 154.00㎡(46.59坪)
- 築年月(竣工月)
- 2026年6月予定
- 建ぺい率/容積率
- 50%/80%
- 接道状況
- 西側公道8.000m 接道11.000m
- 用途地域
- 第一種低層住居専用地域
- 設備
- 灯油、システムキッチン、IHクッキングヒーター、食器洗乾燥機、浄水器、シャワー付洗面化粧台、節水型トイレ、温水洗浄便座、TVモニタ付インターホン、全居室フローリング、ウォークインクローゼット、シューズクローク
- 建物面積
- 101.03㎡(30.56坪)
- 駐車場
- 2台
- 都市計画
- 市街化区域
- 地目
- 宅地
- 地勢
- 平坦
- 取引態様
- 売主
- 建築確認番号
- 第SKK20252522号
- 引渡し予定月
- 2026年7月予定
- その他制限事項
- 景観法、宅地造成工事規制区域、高度地区、都市再生特別措置法
- 取引有効期限
- 2026年2月28日
この物件を問い合わせる
NATURAL STYLE