〈商談中〉南北線「麻生」駅バス11分 停歩2分[屯田2-4]A棟NATURAL

物件価格
3,790 万円 (税込)
月々支払い例
92,816
頭金0円/ボーナス払い0円
※40年返済 ※3年固定金利0.83%

交通・地図

所在地
札幌市北区屯田2条4丁目6
最寄駅
中央バス「屯田2条4丁目」停
小学校区
新琴似北小学校
中学校区
屯田中央中学校
0120-406-124

営業時間 / 9:00〜17:00(火・水定休)

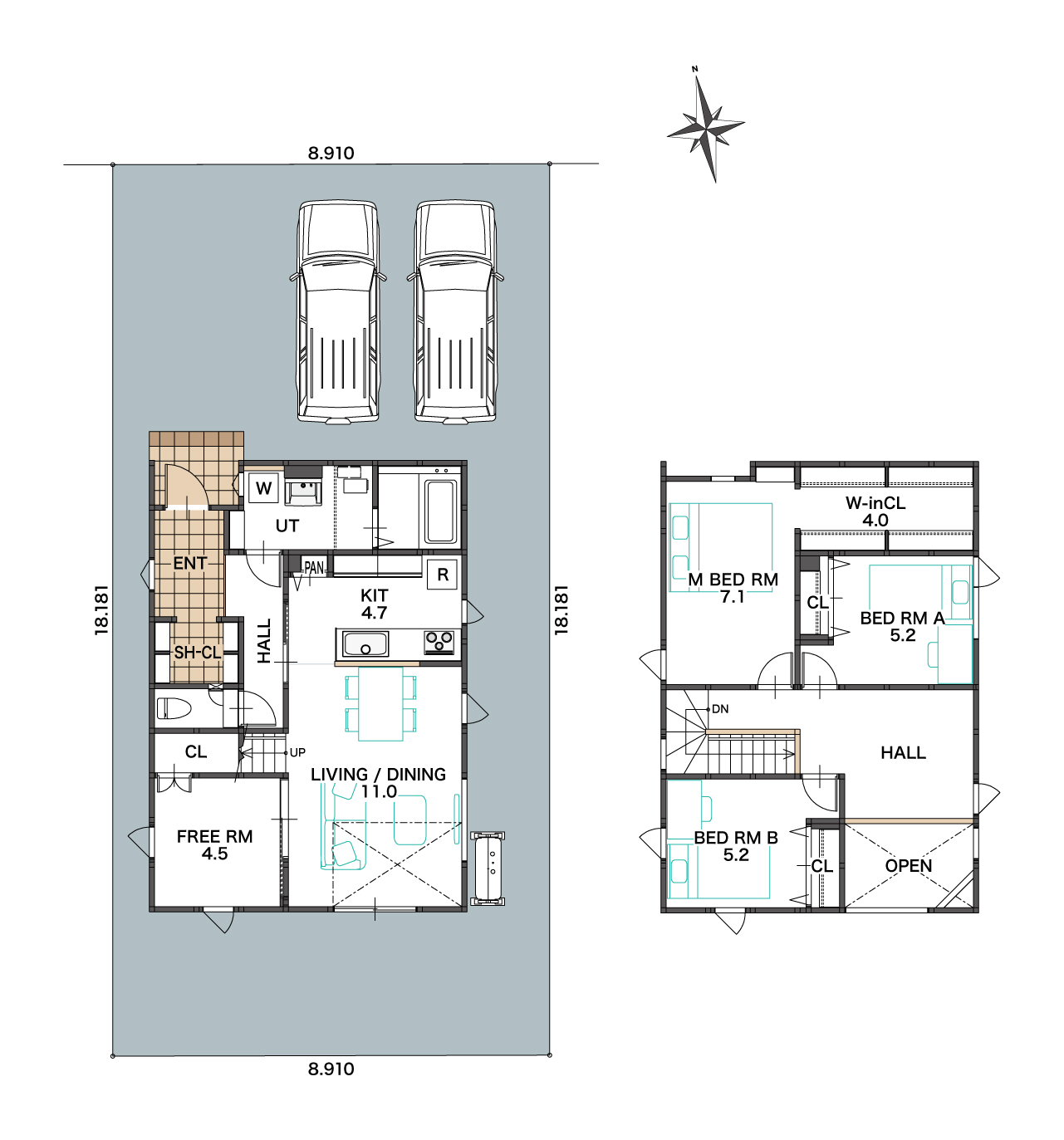
間取り図

ナチュラルスタイル

NATURAL STYLE

ダークスタイルの落ち着いた室内

やさしい色合いの
オーク柄のフロアや
温もりを感じる木目柄のキッチン。
白い壁にグレージュのカーテンを
組み合わせた、
ナチュラルで明るい
開放感のある空間へ

白とグレーのメリハリあるシックな空間
シックな落ち着いたイメージの玄関

内観イメージ

リビング
プロのコーディネーターが監修した、統一感のあるおしゃれなインテリア。全室のカーテン・照明も標準仕様です。
ダイニング
家事をしながら家族とのコミニュケーションも取りやすい、開放的な対面式キッチンダイニング。
キッチン
ステンレス構造のキッチンは、カビやニオイに強く内部まで清潔を保ちます。食器棚・食洗機も標準仕様。
ユーティリティ
清潔感のあるユーティリティ。実用的な三面鏡の洗面化粧台のほかに可動棚もあり収納充実です。
収納
各部屋の収納はもちろん、寝室にはウォークインクローゼットを採用

設備・仕様

  • プレミアムシリーズ外壁

    耐久性に優れた16mmプレミアム外壁材を使用。一般的な外壁材より将来のメンテナンス費用の負担を減らします。

  • 第一種熱交換器

    排気時の熱エネルギーを給気と一緒に室内へ戻します。外気温を室温に近づけて給気するので、快適な室内温度を保つことができます。

  • トリプルガラス

    窓は家の中で最も熱の出入りがある箇所。窓から断熱性能を向上させることで暖房効率も良くなり、光熱費の削減にもつながります。

  • 発泡ウレタン断熱

    硬質ウレタン断熱材で建物壁面をすべて覆います。湿気に強く結露も安心、夏は涼しく冬は暖かい室内空間を作ります。

  • 基礎断熱

    コンクリート基礎を断熱材で内側・外側から挟み込み、寒くない床下をつくります。冷気を床下に入れないので、足元が冷えにくくなります。

  • 玄関床暖房

    玄関土間には床暖房を採用。冬は雪や雨で濡れても乾きやすく、あたたかい状態を保ってくれます。

  • 根太レス工法

    梁と床の根太と呼ばれる床組をなくし、直接合板で貼り固め床にも剛性を持たせる工法。地震の揺れを面全体で受け止め分散・吸収します。

  • セントラルヒーティング

    全居室にセントラルヒーティングを完備。室内の温度差が少なく、24時間家中暖かい状態を保ちます。

物件概要

NATURAL STYLE

間取り
4LDK
土地面積
161.99㎡(49.00坪)
築年月(竣工月)
2025年12月予定
建ぺい率/容積率
60%/200%
接道状況
北側公道8.000m 接道8.910m
用途地域
準住居地域
設備
灯油、システムキッチン、IHクッキングヒーター、食器洗乾燥機、浄水器、シャワー付洗面化粧台、節水型トイレ、温水洗浄便座、TVモニタ付インターホン、全居室フローリング、ウォークインクローゼット、シューズクローク
建物面積
108.76㎡(32.90坪)
駐車場
2台
都市計画
市街化区域
地目
宅地
地勢
平坦
取引態様
売主
建築確認番号
第SKK20251380号
引渡し予定月
2026年1月予定
その他制限事項
景観法、宅地造成工事規制区域、高度地区、都市再生特別措置法
取引有効期限
2025年12月31日

周辺環境

  • JR札沼線「新琴似」駅 徒歩22分

  • 地下鉄南北線「麻生」駅 バス11分<br />
    (中央バス「屯田2-4」停 徒歩2分)

  • 新琴似北小学校 徒歩7分

  • 屯田中央中学校 徒歩22分

  • 元気っ子保育園・屯田南 徒歩3分

  • スーパーエース屯田店 徒歩11分

  • コープとんでん店 徒歩18分

  • サツドラ新琴似6番通店 徒歩10分

この物件を問い合わせる

NATURAL STYLE


    物件名
    物件情報
    お問い合わせ内容
    (複数回答可)
    ご希望日
    (火・水曜定休)
    ご希望時間
    お名前
    電話番号
    (ハイフン(-)なし)
    メールアドレス
    郵便番号
    都道府県
    市区町村
    町域以下
    SOU HOUSEを
    どこでお知りに
    なりましたか?
    ご覧になったこと
    のある広告を教え
    てください
    ご意見・ご質問
    (300文字以内)

    似た条件の物件

    資料請求

    まずはSOU HOUSEを知りたい方
    三角形のモチーフで住宅内観写真をコラージュし、中央に大きく「TOTAL GUIDE」と配した資料請求用バナー。左下にSOUHOUSEロゴと問い合わせ先情報を掲載

    ご自宅でご覧いただける、SOUHOUSEの家づくりがわかる
    無料パンフレットをお送りいたします。

    来場・相談予約

    実際の建物見学をしたい方
    女性スタッフがテーブル越しに夫婦に家づくり資料を見せながら笑顔で説明する、来場・相談予約用のイメージ写真

    住まいを体感したい方へ。ご見学と一緒にお客様の条件に
    合わせた住まいのご提案も行います。